拥有超大庭院的三层新亚洲风格别院,由内而外的经典气派
2020-09-08 14:50:45 阅读:- 来源:
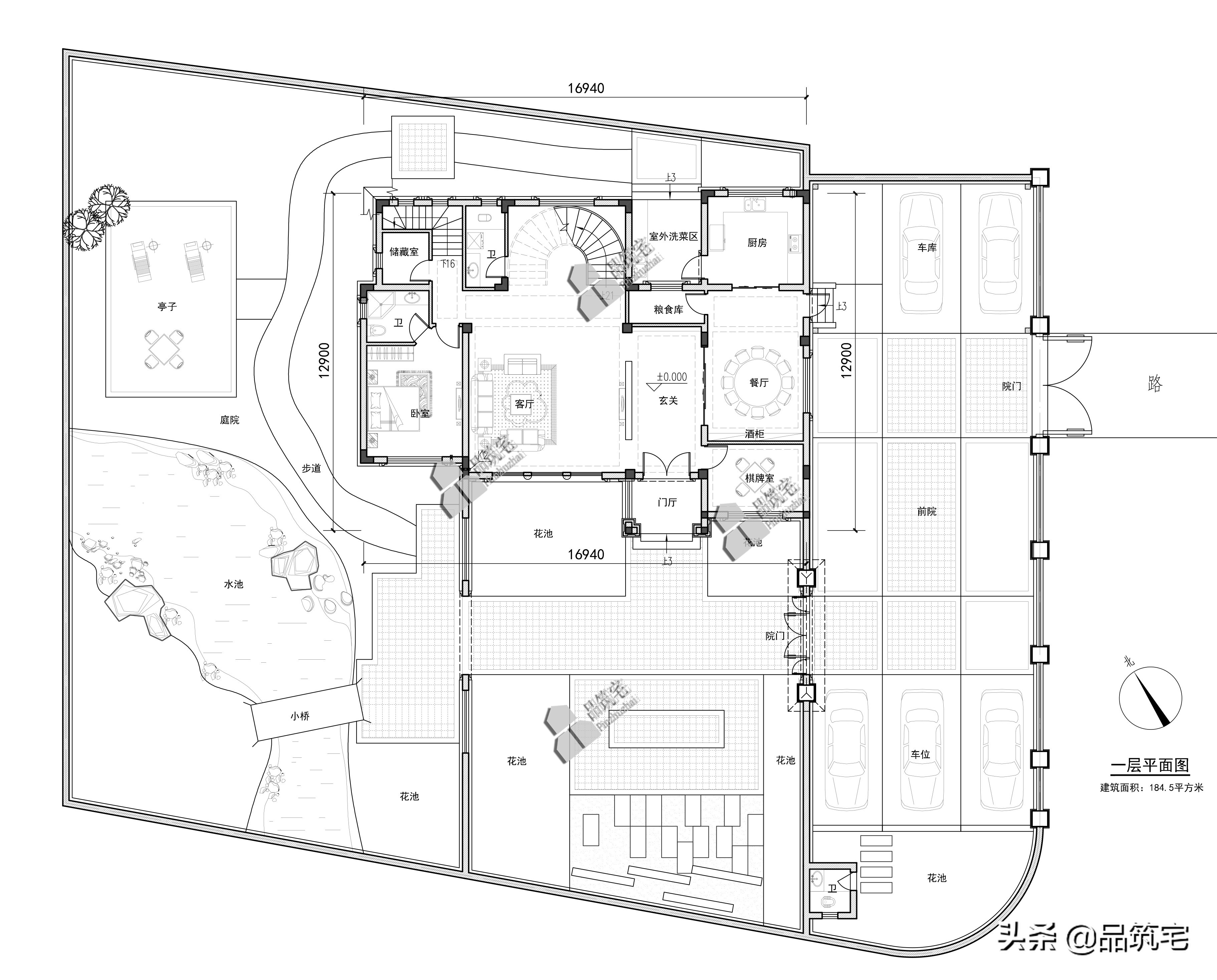
三层新亚洲风格大别院,大庭院围绕,东边入户庭院主要布局停车场,南边和西边的庭院做了丰富的景观小品,给室内空间营造很好的景观面;主体别墅占地180方,大开间新亚洲风别墅造型非常气派,室内布局也是方正敞亮,挑空客厅、开敞弧形楼梯等舒适大气的设计,都让别墅由内而外的体现着新亚洲风格的经典气派~
▲南立面透视
▲西南角度鸟瞰
▲东南角度鸟瞰
▲东南角度透视
▲东立面透视
▲北立面透视
▲西立面透视
▲一层平面:东边院门,东边庭院主要做停车用,再过一道景观院门到主院,西边庭院做了小桥流水、步道亭子等丰富的景观小品;主体别墅南边门厅入户,进门后玄关,东边棋牌室、厨房、餐厅,有侧门通往东边庭院停车场;玄关西边是挑空大客厅、弧形开敞楼梯,楼梯旁设公卫;西边一间卧室套房,北边储藏室、小楼梯通往局部地下室;
▲二层平面:东边一间主卧大套房(带书房、衣帽间、卫生间、阳台);西边一间卧室套房(带书房、衣帽间、卫生间);
▲三层平面:东边南向露台,北边一间卧室;西边一间卧室套房(带书房、衣帽间、卫生间);中间南向一间卧室(带连阳台)、一间小客厅;

